RENTA O VENTA DE NAVE INDUTRIAL DE 2350 M2 SOBRE CARR. A CONKAL

Mococha, Mocochá, Yucatán

  • $33,000,000 En Venta
  • $95 por m² En Renta
  • $33,000,000 En Venta
  • $95 por m² En Renta
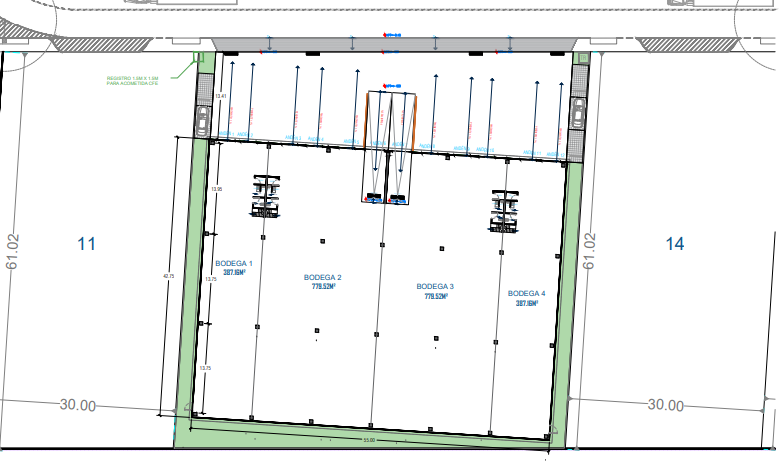
  • 2,350 m² de construcción
  • 3,635 m² de terreno
  • 5 Estacionamientos

Detalles

  • Tipo: Nave industrial
  • ID: EB-SI2579
  • Antigüedad: A estrenar
  • Fondo del terreno: 60 m
  • Frente del terreno: 60 m
  • Mantenimiento: Incluido

Descripción

Ubicadas sobre la carretera Mérida-Motul, kilometro 14.2, dentro del parque industrial Tek Park:

2 BODEGAS INDUSTRIALES DISPONIBLES IDEALES PARA ALMACENAMIENTO O MANUFACTURA.
B1: 1,175 M2
B2: 1,175 M2

Cada una trendrá oficinas 10 M2 en planta alta y baños de 10 M2 en planta baja.

La nave multiusuario contará con
-Patio de maniobras de 765 M2
-Áreas verdes
-Área permeable en estacionamiento
-Ancho a ejes de 8.65 M
-Largo a ejes de 13.95 M
-Altura libre a rodilla de 6 M
-Altura libre a cumbrera de 8 M
-Area a cubrir en cubierta 2410.3 M2
-Firme de concreto interior f'c=200 kg/cm2, reforzado con 12 cm espesor.
-Carpeta asfaltica en area de patio de maniobras, 5cm espesor
-Firme de concreto exterior f'c=250 kg/cm2, reforzado en anden inverso
-Energía trifásica.
-2 biodigestores de 600 L c/u
-2 pozos de aprovechamiento de agua
-mantenimiento incluido

PRE-RENTA
ENTREGA ENERO 2026

Amenidades

  • Seguridad 24 horas
  • Andén
  • Facilidad para estacionarse
  • Accesibilidad para personas con discapacidad
  • Bodega
  • Rampas

Ubicación

Mococha, Mocochá, Yucatán