Ver Tour Virtual
- $1,649,000 En Venta
- 1 recámara
- 1 baño
- 52.15 m² de construcción
- 1 Estacionamientos
Detalles
- Tipo: Departamento
- ID: EB-NZ4436
- Clave interna: DV-8947
- Antigüedad: A estrenar
- Recámaras: 1 recámara
- Baños: 1
- Piso: 2
- Mantenimiento: $1,300
Descripción
El desarrollo cuenta con modelos de 1 y 2 habitaciones disponibles lo que permite adaptarse a diferentes tamaños de familias o necesidades individuales.
AMENIDADES: rooftop, alberca, sundeck, terraza, bar.
Entrega Inmediata
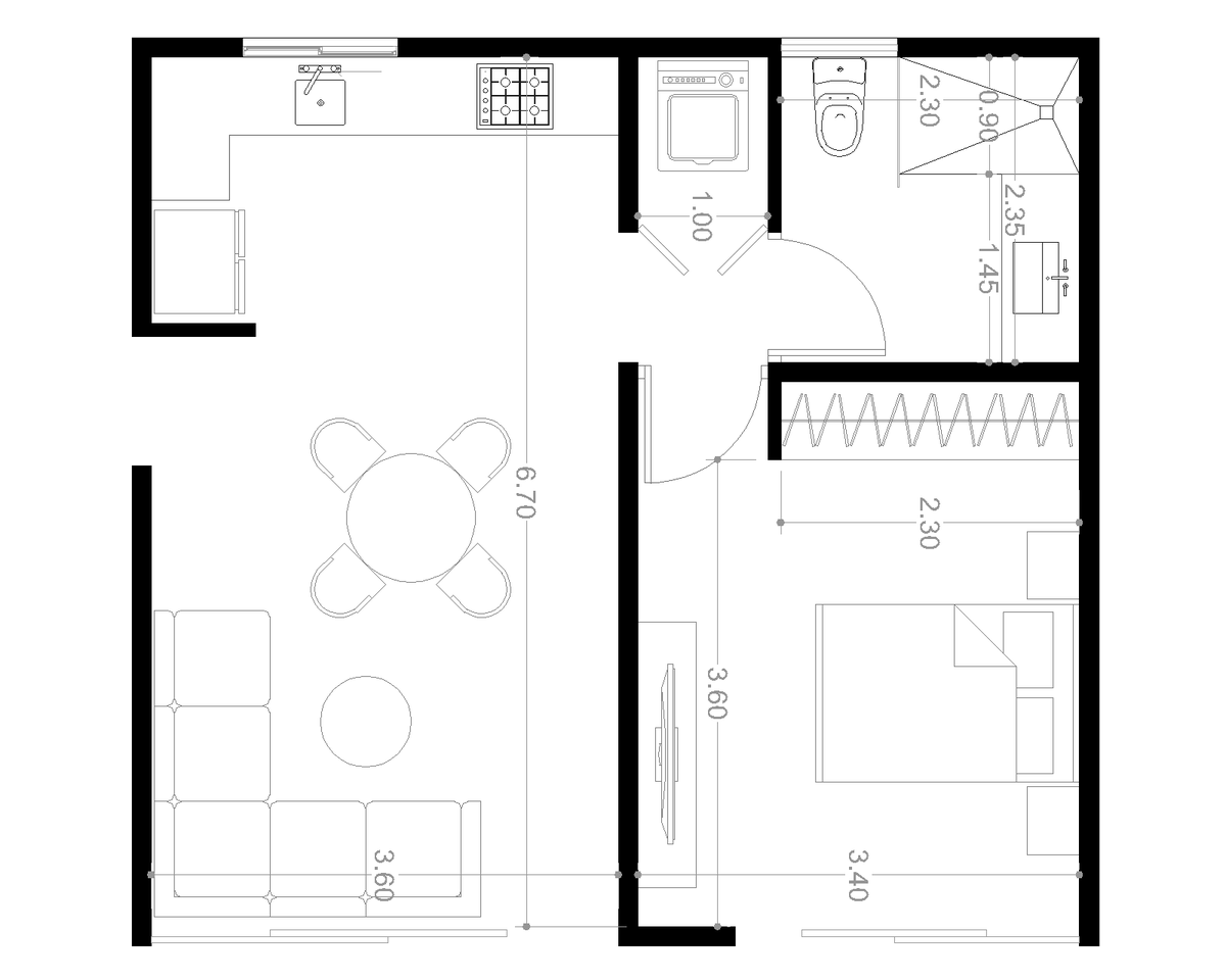
Modelo Zen, Segundo Nivel
Distribución del Departamento.
SEGUNDO NIVEL:
Estacionamiento sin Techar Para 1 Auto
Sala
Comedor
Cocina Integral
Recámara con Closet
Baño Compartido
Área de Lavado.
SE ENTREGA CON: Parrilla Eléctrica, Calentador Eléctrico, Cancel En Baño, Recubrimiento en Baños a Base de Mármol Travertino, Portón Eléctrico, Meseta de Granito en Cocina.
REQUISITOS:
Apartado: $20,000
Enganche: 5%
Crédito Bancario y Recurso Propio.
El contrato se deberá firmar a los 7 días posteriores al apartado.
Precio Vigente al 11 de Noviembre 2025
Disponibilidad y precio sujeto a cambio sin previo aviso. Favor de consultar precio actual con su asesor.
El precio de la publicación no incluye gastos notariales, impuestos, gastos de solicitud de créditos, avalúos, cuotas de mantenimiento ni gasto de administración que se genere.
Las imágenes ilustrativas son una guía gráfica parecida al producto final y pueden tener ajustes y modificaciones sin previo aviso.
Opciones de financiamiento
- Créditos bancariosMortgage
Enganche: 5%
Amenidades
- Facilidad para estacionarse
- Jardín
- Parrilla
- Accesibilidad para adultos mayores
- Cocina
- Cocina integral
- Hidroneumático
- Mascotas permitidas
- Permitido fumar
- Roof garden
- Terraza
- Seguridad 24 horas
- Alberca
Ubicación












